Van Kronenburgvliet 15, Barendrecht

€ 500.000 bieden vanaf € 500.000
Naar woningdossier
Sluit over:
Biedgeschiedenis bekijken
Bod Bieder Hypotheekcertificaat Wanneer
Totaal: biedingen    


Bezichtigen en woningdossier downloaden

WILT U ONS OPEN HUIS BEZOEKEN? MELD U DAN AAN VIA FUNDA (STUUR ONS EEN BERICHT), ZODAT WE UW REGISTRATIE KUNNEN VERWERKEN EN U DE WONINGINFORMATIE KUNNEN TOESTUREN.

Wonen aan de Van Kronenburgvliet 15
Is kiezen voor het beste van twee werelden. In de gewilde wijk Molenvliet in Barendrecht geniet u van het dorpse gevoel van rust, ruimte en groen met de levendige energie van Rotterdam letterlijk om de hoek. Een plek waar kinderen veilig buiten spelen, buren elkaar nog groeten en de avonden rustig zijn op het zachte ruisen van de bomen na.

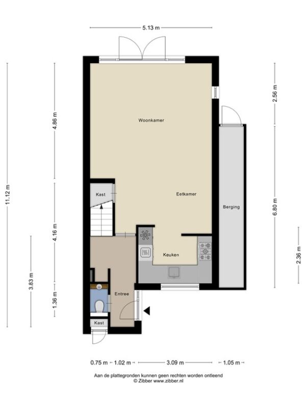
Indeling en leefruimte
De begane grond straalt rust en comfort uit. De royale woonkamer met open eetgedeelte ontvangt veel natuurlijk licht en is uitgerust met een airco-installatie, waardoor het in elk seizoen aangenaam vertoeven is. De moderne PVC-vloer loopt naadloos door over de gehele begane grond en eerste verdieping, terwijl ook de trappen hiermee zijn bekleed. Dit zorgt voor een stijlvolle, uniforme uitstraling en is bovendien praktisch in onderhoud.

Via de openslaande deuren bereikt u de onderhoudsvriendelijke tuin met moderne overkapping en vrijstaande berging, een fijne plek om te ontspannen of samen te eten op zomerse dagen. De keuken aan de voorzijde is compleet uitgerust met een vaatwasser, heteluchtoven, 5-pits gasfornuis, afzuigkap en magnetron, een praktische en prettige ruimte voor wie graag kookt.

Op de eerste verdieping bevinden zich twee goed bemeten slaapkamers, waarvan de kleinste over de volle breedte is voorzien van een praktische inbouwkast. Daarnaast is er een verzorgde badkamer met douche, wastafelmeubel en toilet. De tweede verdieping telt nog twee slaapkamers en beschikt over handige bergruimte achter de knieschotten. Met in totaal vier slaapkamers biedt deze woning volop ruimte voor een gezin, thuiswerkers of iedereen die behoefte heeft aan extra leefruimte.

Boven de zolder bevindt zich bovendien een praktische vliering, ideaal als extra opbergruimte voor seizoensspullen of bagage.

Bereikbaarheid
De ligging is ideaal. Binnen enkele minuten bereikt u de A15, A16 en A29 en rijdt u moeiteloos richting Rotterdam, Dordrecht of Breda. Ook het openbaar vervoer is uitstekend. Station Barendrecht ligt dichtbij en brengt u in een kwartier naar het hart van Rotterdam. Diverse buslijnen doorkruisen de wijk en sluiten aan op het regionale netwerk.

Faciliteiten
Voor de dagelijkse boodschappen ligt winkelcentrum Molenvliet op loopafstand, met onder andere een supermarkt, drogisterij, slager en diverse speciaalzaken. Voor uitgebreider winkelen of een koffiepauze vindt u in Carnisse Veste een modern winkelcentrum met tientallen winkels, boetieks en gezellige horeca.

Sport- en gezinsvoorzieningen zijn volop aanwezig, van SportCity en Sportcentrum Carnisselande tot lokale sportverenigingen, scholen, kinderopvang en medische centra. Alles is binnen handbereik.

Recreatie en ontspanning
De omgeving biedt volop recreatiemogelijkheden. Wandel of fiets langs de Oude Maas, geniet in het recreatiegebied Carnisselande of ontspan in het groen rond de wijk. En voor wie van stadsleven houdt, staat binnen een kwartier bij Pathé De Kuip, Rotterdam Ahoy of in het bruisende centrum met zijn winkels, restaurants en uitgaansgelegenheden.

Van Kronenburgvliet 15 is een woning waarin rust en dynamiek hand in hand gaan. Een stijlvolle balans tussen ontspannen wonen en volop leven.



Een bod uitbrengen op deze woning?

Bovenaan deze pagina kun je jouw bod ingeven voor deze woning. Er verschijnt vervolgens een pop-upvenster. Geef daarin aan of je jouw bod doet onder voorbehoud van een bouwtechnische keuring en/of  financiering.

Let op, wordt er in het laatste kwartier een bod uitgebracht, dan wordt de biedtermijn met 15 minuten verlengd.

Aan het einde van de biedingstermijn bepaalt de verkoper of hij/zij de woning wil verkopen. Als de verkoper het hoogste bod niet voldoende vindt, kan deze besluiten de woning niet te verkopen. Heb jij het beste bod uitgebracht en accepteert de verkoper dit? Dan nemen we zo snel mogelijk contact met je op om een koopovereenkomst te sluiten.

De uiteindelijke koper betaalt een makelaars fee aan De Gratis Makelaar. Betaling daarvan vindt plaats bij de notaris op het moment van levering. De fee is onderdeel van de koopsom en kan worden meegefinancierd in de hypotheek.

Het verhogen van jouw bod werkt met een staffel:

• Is de huidige prijs tussen €0,- en €200.000,- dan is het minimale ophoog bedrag €500,- en de maximale verhoging €2.500,- per keer.
• Is de huidige prijs tussen €200.000,- en €450.000,- dan is het minimale ophoog bedrag €1.000,- en de maximale verhoging €5.000,- per keer.
• Is de huidige prijs tussen €450.000,- en €1.000.000,- dan is het minimale ophoog bedrag €2.000,- en de maximale verhoging €12.500,- per keer.

Wij wensen je succes met bieden! 

Voor vragen kan je altijd contact met ons opnemen.

Blauw en Florijn
Vergroot direct jouw kansen op een woning.
Ontdek het nu! Zet jezelf op voorsprong!
Omschrijving en kenmerken Van Kronenburgvliet 15, Barendrecht
Bouw
Soort woonhuis
Eengezinswoning
Nieuwbouw
Nee
Bouwjaar
1986
Ligging tuin
Noord
Tuin achterom bereikbaar
Nee
Oppervlakte tuin
72.77 (10.78 bij 6.75)
Alle kenmerken bekijken
Locatie Van Kronenburgvliet 15, Barendrecht