Rietgors 58, Eemnes

€ 520.000 bieden vanaf € 520.000
Naar woningdossier
Sluit over:
Er kan geboden worden vanaf: 28-11-2025 om 00:00 uur.
Biedgeschiedenis bekijken
Bod Bieder Hypotheekcertificaat Wanneer
Totaal: biedingen    


Bezichtigen en woningdossier downloaden

WILT U ONS OPEN HUIS BEZOEKEN OF KAN U ENKEL OP EEN ANDER MOMENT BEZICHTIGEN? MELD U DAN AAN VIA FUNDA (STUUR ONS EEN BERICHT), ZODAT WE UW REGISTRATIE KUNNEN VERWERKEN EN DE WONINGINFORMATIE NAAR U KUNNEN STUREN.

Instapklare eindwoning met energielabel A, 13 glas-glas zonnepanelen, diepe zonnige zuidtuin, carport en vier slaapkamers

Aan een rustige en groene straat in Eemnes staat deze uitstekend verzorgde hoekwoning die ruimte, comfort en duurzaamheid combineert.
De woning beschikt over energielabel A, 13 glas-glas zonnepanelen met micro-omvormers, een diepe tuin op het zuiden en vier volwaardige slaapkamers.
Met 116 m² woonoppervlakte, een lichte woonkamer en een fijne overkapping is dit een compleet gezinshuis dat direct te betrekken is.

Inleiding van de woning
De woning valt op door de prettige lichtinval, de nette afwerking en de moderne verduurzaming. De combinatie van kunststof en houten kozijnen,
een recent gerenoveerde badkamer en een zonnige tuin creëert een warm en comfortabel geheel. De rustige en kindvriendelijke ligging maakt het plaatje compleet

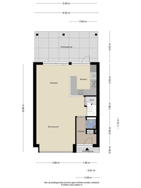
Begane grond
De entree geeft toegang tot de hal met toilet, waarna je direct de ruime doorzonwoonkamer binnenstapt. De trap bevindt zich in de woonkamer, wat zorgt voor een logische indeling en een prettig ruimtelijk gevoel. Dankzij de grote raampartijen voelt de woonkamer licht en uitnodigend aan, met voldoende plek voor zowel een royale zit- als eethoek.

Aan de tuinzijde ligt de open keuken, voorzien van een inbouw koel-vriescombinatie, combi-oven, vaatwasser, gaskookplaat en afzuigkap.
De houten kozijnen op deze verdieping geven het geheel een warme uitstraling en het schilderwerk is uitstekend bijgehouden (2018 en het erkertje in 2023).
Via de keuken stap je direct onder de overkapping, waardoor binnen en buiten mooi in elkaar overlopen.

Eerste verdieping
Op de eerste verdieping bevinden zich drie goed bemeten slaapkamers, allemaal voorzien van onderhoudsarme kunststof kozijnen.
De badkamer is in 2024 deels gerenoveerd en uitgerust met een ligbad, een aparte douche, een tweede toilet en een modern wastafelmeubel.

Tweede verdieping
De ruime zolderverdieping, eveneens met houten kozijnen, biedt een grote vierde slaapkamer met dakramen en veel bergruimte onder de schuine wanden.
De Intergas CV-ketel (eigendom, 2010) staat hier opgesteld en heeft recent onderhoud gehad (december 2024).

Tuin, carport en berging
De achtertuin ligt op het zuiden en biedt daardoor vrijwel de hele dag zon. De tuin is diep, verzorgd en praktisch ingericht, met een ruim terras en veel privacy.
Direct achter de woonkamer bevindt zich een royale overkapping, waardoor je al vroeg in het voorjaar en tot laat in het najaar heerlijk buiten kunt zitten.
Achter in de tuin vind je de stenen berging en de eigen carport, die samen met de achterom zorgen voor optimale toegankelijkheid.

De omgeving
Rietgors 58 ligt in een vriendelijke en rustige wijk met veel groen en een ontspannen sfeer. De straten zijn breed en kindvriendelijk,
met speelplaatsen en veilige routes naar scholen en voorzieningen. Het dorpskarakter van Eemnes, gecombineerd met de ruimte en rust van de wijk,
zorgt voor een bijzonder prettige woonomgeving.

Bereikbaarheid
Eemnes is centraal gelegen en daardoor uitstekend bereikbaar. Binnen enkele minuten rijd je de A1 of A27 op richting Amsterdam, Utrecht, Almere of Amersfoort.
Ook het openbaar vervoer is dichtbij, met bushaltes op loopafstand die directe verbindingen bieden met Hilversum, Laren en Amersfoort.
Parkeren is in de wijk gratis en de woning beschikt bovendien over een eigen carport, waardoor je altijd verzekerd bent van een vaste plek.

Voorzieningen
Voor dagelijkse boodschappen ligt het dorpscentrum op loop afstand, met onder andere een supermarkt, een bakker en diverse andere winkels.
Scholen, kinderopvang en speeltuinen bevinden zich binnen loop- of fietsafstand, wat de wijk bijzonder geschikt maakt voor gezinnen.
Sportliefhebbers hebben keuze uit verschillende verenigingen in de buurt, waaronder Huis van Eemnes (bibliotheek en buurcentrum) voetbal, hockey, tennis en fitness. Ook huisarts, apotheek en andere medische voorzieningen zijn goed bereikbaar.

Entertainment
De directe omgeving biedt een verrassend ruim aanbod aan horeca en cultuur. In Laren vind je gezellige cafés, sfeervolle restaurants en stijlvolle boetieks.
Singer Laren biedt daarnaast een rijk programma met theater, concerten en tentoonstellingen. Binnen 10 tot 15 minuten rijden sta je in het centrum van Hilversum, met bioscopen, terrassen, winkels en media-evenementen. Ook Baarn en Soest bieden diverse leuke eetgelegenheden en plekken voor een avond uit.

Natuur en recreatie
De woning ligt vlak bij prachtige natuurgebieden. De Eemnesser polder is ideaal voor wandelingen, fietstochten en vogelspotten.
De heidevelden van Laren en Blaricum liggen op korte afstand en zijn het hele jaar door mooi om te bezoeken. Voor bosliefhebbers zijn Baarn, Lage Vuursche en het Goois Natuurreservaat binnen enkele minuten bereikbaar, met talloze wandelpaden, routes en recreatiemogelijkheden.

Duurzaamheid
De woning is volledig voorbereid op de toekomst. Het dak, de spouw en de vloer zijn geïsoleerd en op het dak liggen 13 glas-glas zonnepanelen uit 2020, elk met een eigen micro-omvormer. De Intergas CV-ketel uit 2010 is eigendom en recent onderhouden. Het energielabel A onderstreept de lage energielasten en de duurzame prestaties van de woning.

Samengevat
Rietgors 58 is een complete, duurzame en instapklare hoekwoning met vier slaapkamers, een diepe zonnige zuidtuin, moderne voorzieningen en een centrale ligging in een groene en rustige wijk. Een ideale gezinswoning waar ruimte, comfort en energiezuinig wonen samenkomen.



Een bod uitbrengen op deze woning?

Bovenaan deze pagina kun je jouw bod ingeven voor deze woning. Er verschijnt vervolgens een pop-upvenster. Geef daarin aan of je jouw bod doet onder voorbehoud van een bouwtechnische keuring en/of  financiering.

Let op, wordt er in het laatste kwartier een bod uitgebracht, dan wordt de biedtermijn met 15 minuten verlengd.

Aan het einde van de biedingstermijn bepaalt de verkoper of hij/zij de woning wil verkopen. Als de verkoper het hoogste bod niet voldoende vindt, kan deze besluiten de woning niet te verkopen. Heb jij het beste bod uitgebracht en accepteert de verkoper dit? Dan nemen we zo snel mogelijk contact met je op om een koopovereenkomst te sluiten.

De uiteindelijke koper betaalt een makelaars fee aan De Gratis Makelaar. Betaling daarvan vindt plaats bij de notaris op het moment van levering. De fee is onderdeel van de koopsom en kan worden meegefinancierd in de hypotheek.

Het verhogen van jouw bod werkt met een staffel:

• Is de huidige prijs tussen €0,- en €200.000,- dan is het minimale ophoog bedrag €500,- en de maximale verhoging €2.500,- per keer.
• Is de huidige prijs tussen €200.000,- en €450.000,- dan is het minimale ophoog bedrag €1.000,- en de maximale verhoging €5.000,- per keer.
• Is de huidige prijs tussen €450.000,- en €1.000.000,- dan is het minimale ophoog bedrag €2.000,- en de maximale verhoging €12.500,- per keer.

Wij wensen je succes met bieden! 

Voor vragen kan je altijd contact met ons opnemen.

Blauw en Florijn
Vergroot direct jouw kansen op een woning.
Ontdek het nu! Zet jezelf op voorsprong!
Omschrijving en kenmerken Rietgors 58, Eemnes
Bouw
Soort woonhuis
Eengezinswoning
Nieuwbouw
Nee
Bouwjaar
1974
Ligging tuin
Tuin achterom bereikbaar
Oppervlakte tuin
Alle kenmerken bekijken
Locatie Rietgors 58, Eemnes