Prisma 54, Rhoon

€ 750.000 bieden vanaf € 750.000
Naar woningdossier
Gesloten
Biedgeschiedenis bekijken
Bod Bieder Hypotheekcertificaat Wanneer
€ 760.000 Marty / HOOGVLIET ROTTERDAM 19:20 op 13 nov
€ 752.000 H / Rotterdam 17:08 op 12 nov
Totaal: 2 biedingen    


Bezichtigen en woningdossier downloaden

WILT U ONS OPEN HUIS BEZOEKEN? MELD U DAN AAN VIA FUNDA (STUUR ONS EEN BERICHT), ZODAT WE UW REGISTRATIE KUNNEN VERWERKEN EN U DE WONINGINFORMATIE KUNNEN TOESTUREN.

Aan de rustige rand van Portland ligt deze moderne en energiezuinige eengezinswoning met energielabel A en een royale woonoppervlakte van 162,1 m². De woning telt vijf kamers en biedt volop comfort dankzij airco’s in elke kamer, die zowel kunnen verwarmen als koelen. Op het dak liggen 22 zonnepanelen uit 2015 (270 W) en 15 panelen uit 2023 (355 W), samen goed voor een vermogen van ruim 11 kWp. Dankzij de duurzame voorzieningen al krachtig voorbereid op de toekomst.

Extra potentie – eenvoudig meerwaarde creëren
De woning biedt de mogelijkheid om extra woonruimte toe te voegen. De zolder heeft een hoogte van ongeveer 3 meter, meer dan 0,5 m² raamoppervlak en een vaste radiator. Door het plaatsen van een vaste trap kan deze ruimte worden omgevormd tot een volwaardige verdieping.

Zo ontstaat circa 20 m² extra woonoppervlak en een zesde kamer, wat de woning niet alleen ruimer maakt, maar ook direct in waarde doet stijgen. Perfect voor wie een extra slaapkamer, werkkamer of hobbyruimte wil realiseren zonder te hoeven uitbouwen.

De wijk Portland in Rhoon verenigt het beste van stad en natuur. Hier woon je in een rustige, groene omgeving met water, parken en speelplekken om de hoek, terwijl alle dagelijkse voorzieningen binnen handbereik liggen. Winkels, supermarkten, gezellige horecazaken en sportclubs alles wat het leven comfortabel maakt bevinden zich in de directe omgeving.
De sfeer in de buurt is gemoedelijk en dorps, met ruimte om buiten te leven en buren die elkaar nog kennen. terwijl Kinderen hier nog op straat spelen, terwijl volwassenen genieten van de rust die zeldzaam is zo dicht bij de stad.

Rhoon ligt direct tegen Rotterdam en Barendrecht aan. Je rijdt er binnendoor of via de A15 en A29 in slechts enkele minuten naartoe. Ook met metro en bus ben je snel in Rotterdam, Spijkenisse of Barendrecht. Rustig wonen, met de stad altijd dichtbij.

Voor liefhebbers van natuur en recreatie is dit een plek om te koesteren. De jachthaven, de Rhoonse polder en de nabijgelegen 18-holes golfbaan bieden volop mogelijkheden om te ontspannen in de buitenlucht of je nu graag wandelt, fietst, vaart of golft. Hier komen rust, ruimte en bereikbaarheid op een zeldzaam prettige manier samen.

Begane grond
Entree met hal, meterkast en modern toilet. De woonkamer is ruim opgezet en licht, voorzien van vloerverwarming en airconditioning. Aan de voorzijde ligt de open keuken met oven, vaatwasser, inductieplaat, combimagnetron, luxe afzuigkap, warmhoudlade en Quooker (bouwjaar keuken 2018). De eethoek sluit hier mooi op aan en biedt zicht op de achtertuin. Aan de achterzijde is een sfeervolle serre toegevoegd, perfect als verlengstuk van de woonkamer.

De tuin is verzorgd en onderhoudsvriendelijk aangelegd, met een groot terras, borders en een stenen berging met elektra. Zowel aan de voor- als achterzijde is er voldoende buitenruimte om in alle seizoenen van de zon te genieten.

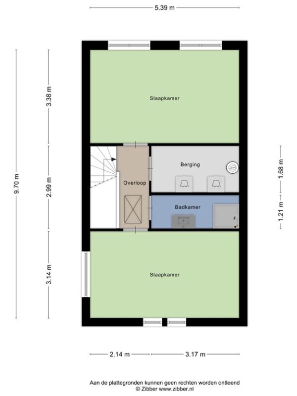
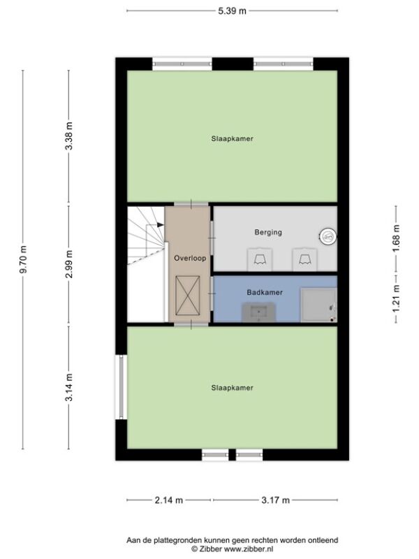
Eerste verdieping
Overloop met toegang tot twee ruime slaapkamers, beide voorzien van airco en rolluiken. De badkamer is uitgerust met vloerverwarming, ligbad, inloopdouche, wastafelmeubel en tweede toilet.

Tweede verdieping
Nog twee slaapkamers, eveneens met airco en rolluiken. Op deze verdieping bevindt zich ook een praktische tweede badkamer met douche en wastafel, en een aparte berging met aansluitingen voor wasmachine en droger.



Een bod uitbrengen op deze woning?

Bovenaan deze pagina kun je jouw bod ingeven voor deze woning. Er verschijnt vervolgens een pop-upvenster. Geef daarin aan of je jouw bod doet onder voorbehoud van een bouwtechnische keuring en/of  financiering.

Let op, wordt er in het laatste kwartier een bod uitgebracht, dan wordt de biedtermijn met 15 minuten verlengd.

Aan het einde van de biedingstermijn bepaalt de verkoper of hij/zij de woning wil verkopen. Als de verkoper het hoogste bod niet voldoende vindt, kan deze besluiten de woning niet te verkopen. Heb jij het beste bod uitgebracht en accepteert de verkoper dit? Dan nemen we zo snel mogelijk contact met je op om een koopovereenkomst te sluiten.

De uiteindelijke koper betaalt een makelaars fee aan De Gratis Makelaar. Betaling daarvan vindt plaats bij de notaris op het moment van levering. De fee is onderdeel van de koopsom en kan worden meegefinancierd in de hypotheek.

Het verhogen van jouw bod werkt met een staffel:

• Is de huidige prijs tussen €0,- en €200.000,- dan is het minimale ophoog bedrag €500,- en de maximale verhoging €2.500,- per keer.
• Is de huidige prijs tussen €200.000,- en €450.000,- dan is het minimale ophoog bedrag €1.000,- en de maximale verhoging €5.000,- per keer.
• Is de huidige prijs tussen €450.000,- en €1.000.000,- dan is het minimale ophoog bedrag €2.000,- en de maximale verhoging €12.500,- per keer.

Wij wensen je succes met bieden! 

Voor vragen kan je altijd contact met ons opnemen.

Blauw en Florijn
Vergroot direct jouw kansen op een woning.
Ontdek het nu! Zet jezelf op voorsprong!
Omschrijving en kenmerken Prisma 54, Rhoon
Bouw
Soort woonhuis
Eengezinswoning
Nieuwbouw
Nee
Bouwjaar
2009
Ligging tuin
Tuin achterom bereikbaar
Oppervlakte tuin
Alle kenmerken bekijken
Locatie Prisma 54, Rhoon