Korstmos 5, Nieuwerkerk Aan Den Ijssel

€ 225.000 bieden vanaf € 224.000
Naar woningdossier
Gesloten
Biedgeschiedenis bekijken
Bod Bieder Hypotheekcertificaat Wanneer
€ 239.500 Amit / Rotterdam 13:47 op 22 mei
€ 238.500 Arjun / Zwijndrecht 13:32 op 22 mei
€ 237.500 Amit / Rotterdam 13:31 op 22 mei
€ 236.500 Arjun / Zwijndrecht 13:16 op 22 mei
Totaal: 10 biedingen    


Bezichtigen en woningdossier downloaden

1E OPEN HUIS 11 MEI 2019 VAN 11.00 TOT 13.00 UUR
2E OPEN HUIS 18 MEI 2019 VAN 11.00 TOT 13.00 UUR

AANMELDEN VOOR HET OPEN HUIS KAN VIA DE WEBSITE VAN DE MAKELAAR

De woningen die wij met ons kantoor aanbieden worden verkocht via ons online biedplatform. Geïnteresseerden hebben hierdoor gelijke kansen en dit is dan ook de enige manier om een bod uit te brengen. Het is transparant en dus inzichtelijk voor iedereen. Daarbij wordt er nog altijd rekening gehouden met het recht van gunnen vanuit verkopers. Goed idee toch? Naast de publicatie op Funda is er bij ons meer informatie te vinden over deze moderne werkwijze.

U KUNT ONLINE EEN BOD UITBRENGEN TOT 22 MEI 2019 13.00 UUR



Een bod uitbrengen op deze woning?

Bovenaan deze pagina kun je jouw bod ingeven voor deze woning. Er verschijnt vervolgens een pop-upvenster. Geef daarin aan of je jouw bod doet onder voorbehoud van een bouwtechnische keuring en/of  financiering.

Let op, wordt er in het laatste kwartier een bod uitgebracht, dan wordt de biedtermijn met 15 minuten verlengd.

Aan het einde van de biedingstermijn bepaalt de verkoper of hij/zij de woning wil verkopen. Als de verkoper het hoogste bod niet voldoende vindt, kan deze besluiten de woning niet te verkopen. Heb jij het beste bod uitgebracht en accepteert de verkoper dit? Dan nemen we zo snel mogelijk contact met je op om een koopovereenkomst te sluiten.

De uiteindelijke koper betaalt een makelaars fee aan De Gratis Makelaar. Betaling daarvan vindt plaats bij de notaris op het moment van levering. De fee is onderdeel van de koopsom en kan worden meegefinancierd in de hypotheek.

Het verhogen van jouw bod werkt met een staffel:

• Is de huidige prijs tussen €0,- en €200.000,- dan is het minimale ophoog bedrag €500,- en de maximale verhoging €2.500,- per keer.
• Is de huidige prijs tussen €200.000,- en €450.000,- dan is het minimale ophoog bedrag €1.000,- en de maximale verhoging €5.000,- per keer.
• Is de huidige prijs tussen €450.000,- en €1.000.000,- dan is het minimale ophoog bedrag €2.000,- en de maximale verhoging €12.500,- per keer.

Wij wensen je succes met bieden! 

Voor vragen kan je altijd contact met ons opnemen.

Blauw en Florijn
Vergroot direct jouw kansen op een woning.
Ontdek het nu! Zet jezelf op voorsprong!
Omschrijving en kenmerken Korstmos 5, Nieuwerkerk Aan Den Ijssel
In de verkoop ons verrassend ruime pas opgeknapte eengezins-hoekwoning. Gelegen in wijk Zuidplas aan een rustige kindvriendelijke doodlopende straat op loopafstand van groot wijkpark en diverse basisscholen.

De nette laminaat vloer ligt er 1,5 jaar in en de keuken is reeds gerenoveerd. Vanuit de keuken heeft u perfect zicht op het goed onderhouden groene pleintje voor de deur en op uw buitenspelende kinderen die samen met de vele buurtkinderen spelen. De eerste verdieping biedt u, 3 slaapkamers, waarvan 1 royale masterbedroom met hoog plafond. Tevens beschikt deze verdieping over een een apart washok, cv-hok en badkamer. Boven de eerste verdieping bevindt zich een ruime vliering voor extra opbergruimte.

De berging bevindt zich naast het huis en biedt u de gelegenheid om uw fietsen droog te zetten of tuin-huis-artikelen op te bergen, daarnaast bevat deze ook een vliering voor het opslaan van uw skispullen. Kortom een heerlijk huis op uitstekende locatie!

Indeling binnen

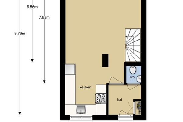
Begane grond:
- Entree: hal, toilet en meterkast;
- Ruime en lichte woonkamer met open keuken (totaal circa 40 m2);
- Open houten onlangs geverfde trap naar 1e etage.

1e etage:
- Badkamer met toilet, douche en wastafel (ca. 5 m2);
- Slaapkamer 1 (ca. 14 m2) met een hoog plafond;
- Slaapkamer 2 (ca. 7 m2);
- Slaapkamer 3 (ca. 9 m2);
- Washok met aansluiting voor wasmachine en droger;
- CV-ruimte met een jaarlijks onderhouden CV uit 2012;
- Mogelijkheid om de vliering (ca. 30 m2) te gebruiken.

Buiten
De zonnige grote, lange achtertuin (ca. 50m2) ligt op het (zuid)westen en biedt een achterom, waar tevens heerlijk tijdens de zwoele zomeravonden gebarbecued kan worden. Aan de rechterzijde van de woning bevindt zich aan het einde van een fietsoprit een ruime berging (ca. 6m2) met vliering.
De voortuin is afgelopen jaar nieuw bestraat met fraaie waaltjes en voorzien van nieuwe beplanting in de perkjes.

Omgeving
Op 100 meter loopafstand bevindt u zich in het Groene Hart park. Tevens is het winkelcentrum De Reigerhof zo'n 500 meter lopen.
Het openbaar vervoer in de richting van Gouda en Rotterdam is makkelijk bereikbaar, zowel bus- als treinverbinding bevinden zich in het dorp.
Ook de snelweg is goed en snel te bereiken.

Bijzonderheden:
- Bouwjaar 1980;
- Perceeloppervlakte 244 m2;
- Woonoppervlakte 89 m2;
- Inhoud 333 m3;
- Nette afgewerkte woning;
- Verwarming en warmwater middels CV-ketel 2012;
- Buiten schilderwerk uitgevoerd begin 2017;
- Voldoende parkeervoorziening in de doodlopende straat;
- De woning is gedeeltelijk voorzien van dubbele beglazing;
- Projectnotaris: De Nationale Notaris;
- De kosten voor de eigendomsoverdracht komen voor rekening van koper.

De uitstekende ligging en de mogelijkheden die deze ruime eengezinswoning biedt, maken een bezichtiging zeker de moeite waard.

De Meetinstructie is gebaseerd op de NEN2580. De Meetinstructie is bedoeld om een meer eenduidige manier van meten toe te passen voor het geven van een indicatie van de gebruiksoppervlakte. De Meetinstructie sluit verschillen in meetuitkomsten niet volledig uit, door bijvoorbeeld interpretatieverschillen, afrondingen of beperkingen bij het uitvoeren van de meting.

Alle verstrekte informatie moet beschouwd worden als een uitnodiging tot het doen van een bod of om in onderhandeling te treden. Er kunnen geen rechten worden ontleend aan deze woninginformatie.
Bouw
Soort woonhuis
Eengezinswoning
Nieuwbouw
Nee
Bouwjaar
1980
Ligging tuin
Tuin achterom bereikbaar
Oppervlakte tuin
Alle kenmerken bekijken
Locatie Korstmos 5, Nieuwerkerk Aan Den Ijssel